Wohnhaus Kempen
Projekt
Typologie
Ort
BauherrIn
Leistungsphase
Neubau
Wohnungsbau
Kempen
Charlotte Gleumes
LP1-3, weitere Beauftragung folgt

Leitidee Das Wounhaus steht für ein mordernes Leben im Einklang mit der Natur. Architektur und Natur greifen ineinander ein und schaffen ein harmonisches Gesamtbild.
Raumkonzept Das Haus greift das Open Living Concept auf, indem Wohn-, Ess-, und Außenbereich fließend ineinander übergehen. Die Verglasung des gesamten Wohnbereiches im Untergeschoss öffnet den Raum zum Garten hin und ermöglicht so, dass ein Großteil des Innenraumes von natürlienem Licht aufgehellt wird. So entsteht ein Leben mit den Tageszeiten. Verbindung von Inner wid Außer Die Terasse fungiert als zentrales Bindeglied zwischen Innenraum und Garten. Sie erweitert den Wohnbereich ins Freie und schafft vielseitige Aufenthaltsmöglichkeiten. Nähe trotz räumlicher Trennung Auch die Öffnung der Decke über dem Essbereich unterstreicht die räumliche Großzügigkeit und schafft Platz für eine helle Galerie im Obergeschoss und einen weiteren Wohnbereich. Trotz der Offenheit des Hauses sind private Bereiche klar zoniert. Schlafräume bilden eigenständig Rückzugsorte und somit einen Gegenpol zum Gemeinschaftsleben im restlichen Wohngebäude. Form und Materialität Die Kombination aus traditionener Ziegelfassade im englisehen Landhausstil und moderner Glasarchitektur verleiht dem Gebände einen zeitlosen Charakter. Das Dach fügt sich in die Umgebung ein und greift farblich andere Elemente aus der Fassadengestaltung auf.

Skizze Grundriss EG

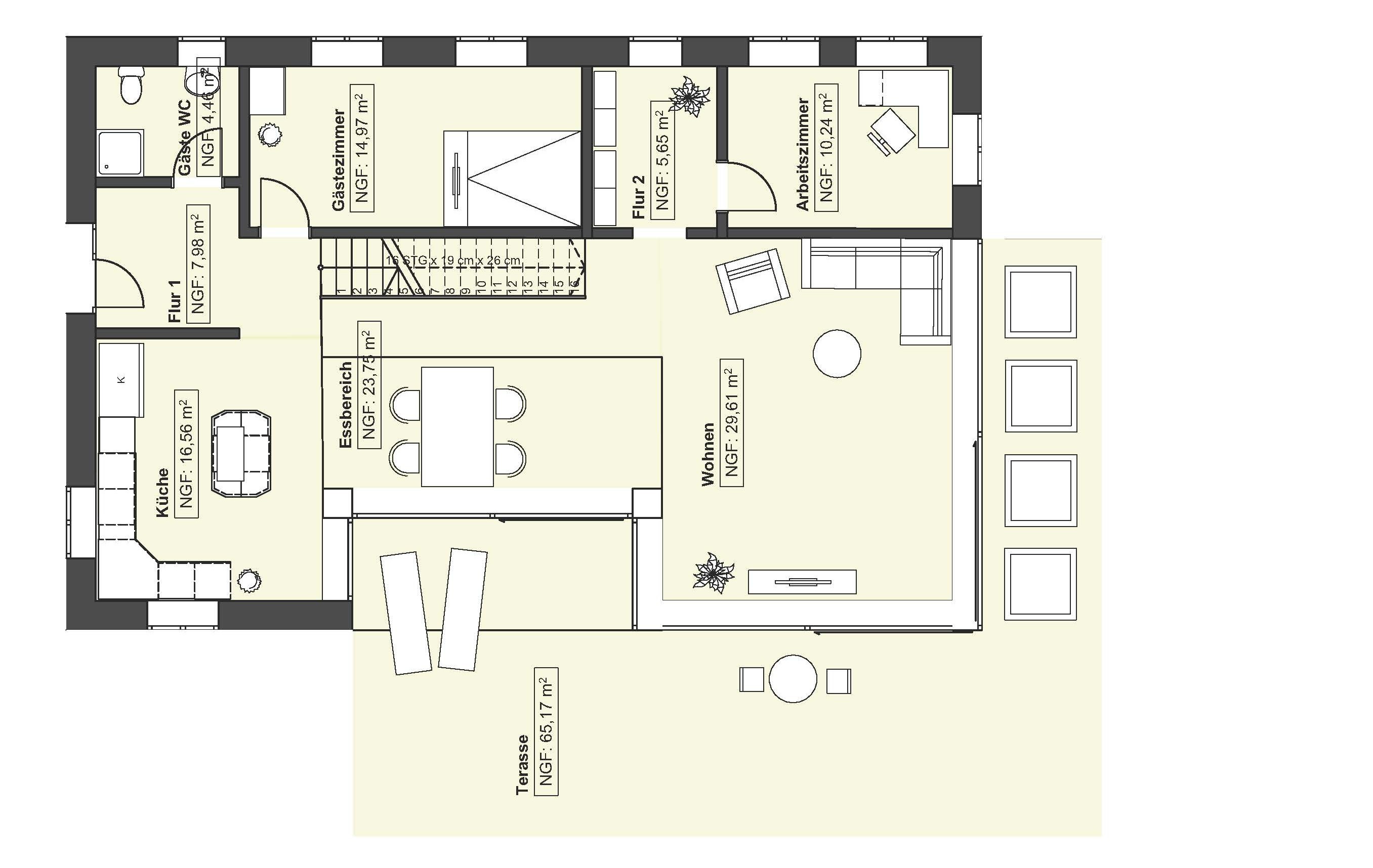
Grundriss EG


© loomn

© loomn
Weitere Projekte

Saerbecker Damm Riesenbeck
Bestand
Transformation
Wohnen
Architekturplanung
Fördermittel
Wohnen
Transformation

Galeria Krefeld
Generalplanung
Transformation
Generalplanung
Masterplanung
Machbarkeitsstudie
Transformation
Mixed Use
Wohnen

